南区麻溝台8丁目 2号棟 1期
【 仲介手数料0円(無料) 】
□フラット35S(金利Aタイプ)利用可 □ZEH水準
〇学区:若草小学校(徒歩5分)・麻溝台中学校
☆前面道路約7.2m、駐車並列2台(車種によります)
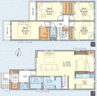
☆都市ガス、エコジョーズ ☆LDK21.7帖、リビング階段
☆網戸標準仕様、シャッター2箇所付
- 価格
-
4,199万円
11月6日 値下げ
- 間取り/建物面積
- 4LDK
108.97㎡
-

- 新磯野保育園分園(相模原市南区)
約2063m/26分

- 誠心第二幼稚園(相模原市南区)
約784m/10分

- さがみひかり幼稚園(相模原市南区)
約1195m/15分

- 豊泉幼稚園(相模原市南区)
約2051m/26分
ローンシミュレーションこの物件を購入した場合の、月々の支払い価格の一例です。借り入れを保証するものではございません。
- 返済期間
-
- 金利
-
- ボーナス時の増額(1回分)
-
- 借入金額:
-
- 頭金:
-

- 毎月の返済額:
(※元利均等方式 金利5.00%まで ※返済年数5~50年まで入力できます)
(※ボーナスは年2回で計算しています。1000万円まで入力できます)
(※物件購入時、その他諸費用が発生する場合がございます)
情報の見方担当者のコメント ひまわり土地建物株式会社

- ☆ 仲介手数料0円(無料)対象物件 ☆
本物件のご購入時にかかる通常仲介手数料
【本体価格×3.3%+6.6万円(約145万円)】が
当社なら0円(無料)となり、お得にご購入できます。
●小学校区:若草(徒歩5分)
●中学校区:麻溝台
□フラット35S(金利Aタイプ)利用可
□ZEH水準(第三者評価BELS)
◇敷地面積42.5坪、前面道路約7.2m、駐車並列2台(車種によります)
◇都市ガス、エコジョーズ
◇バルコニー2箇所
◇網戸標準仕様、シャッター2箇所付
◇4LDK、LDK21.7帖、SIC、各居室収納(1箇所はWIC)、リビング階段
【法令上の制限・その他】
・景観法/宅地造成及び特定盛土等規制法/
都市再生特別措置法
・法22条区域
≪ 自己資金0円でのご購入、諸費用部分やオプション工事
費用等を含めた金額を住宅ローンに組み込んでのお借り入れ
もご相談可能です ≫
当社ホームページに掲載していない物件やポータルサイト・
他社様ホームページ・折り込み広告等に掲載されている物件
でも、仲介手数料が最大0円(無料)で、ご紹介可能な物件
が多数ございます。気になる物件がございましたら、
お気軽に 0120-046-260 までお電話頂くか、
下記、お問い合わせよりお問い合わせください。
販売中につき次回更新時までに成約になる場合があります。
予めご了承くださいますようお願い申し上げます。
ポイント・特徴
仲介手数料0円(無料) 相模原市南区麻溝台 新築 若草小学校 都市ガス LDK20帖以上 前面道路6m以上 駐車2台 相模大野駅 相武台前駅
物件概要
【新築一戸建】 物件番号:97009567 情報更新日:2025年11月11日 次回更新予定日:2025年11月25日所在地 神奈川県相模原市南区麻溝台8丁目 交通 間取り/詳細 4LDK/
LDK21.7帖・SIC・リビング階段建物面積(坪数) 108.97㎡(32.96坪) 価格 4,199万円 駐車場/月額料金 有(2台)/0円 (並列駐車・車種によります) 土地の敷金/保証金 -/- 借地料/借地期間 -/- 土地権利 所有権 土地面積(坪数) 140.69㎡(42.55坪) 傾斜地部分面積 - 路地状敷地 - 私道負担面積/セットバック -/無 高圧線下面積 - 地目/地勢 宅地/- 接道状況 一方(西 公道 7.2m) 建ぺい率/容積率 60%/200% 用途地域 準工業 都市計画 市街化区域 種別/構造 新築一戸建/木造 階建 2階建 築年月(築年数) 2025年 9月 (新築) 総区画数/販売区画数 -/- 向き - 現況 完成済み その他の法令上の制限 景観法/宅地造成及び特定盛土等規制法/都市再生特別措置法 法22条区域 取引態様/引渡時期 仲介/相談 建築確認番号 第25UDI1W建00623号 物件番号 97009567 取引条件の有効期限 2025年11月25日 設備条件 - 仲介手数料無料
- フローリング
- バルコニー
- 都市ガス
- 公営水道
- 公共下水
- 24時間換気システム
- 電気有
- 駐車2台可
- ガスコンロ
- 食器洗い乾燥機
- システムキッチン
- 対面式キッチン
- 追焚機能浴室
- 浴室乾燥機
- 温水洗浄便座
- 洗髪洗面化粧台
- トイレ2ヶ所
- 浴室1坪以上
- 床下収納
- ウォークインクロゼット
- TVモニタ付インターホン
- 複層ガラス
- ディンプルキー
- 住戸内覧可能
備考 ◇ ご購入:仲介手数料が最大無料 ◇
◇ ご売却:仲介手数料が最大半額 ◇
(秘密厳守。ご相談・査定は無料です)
住宅ローンのご相談も住宅ローンに精通
したスタッフが無料でアドバイスさせて
頂きます。
〇車のローンが残っている・・・
〇シングルマザーだからローンは
厳しいかな・・・
〇産休で一時的に年収が下がっている・・・
〇ローンを組みたいけど転職
したばかりで・・・
〇頭金が少ない・・・
〇年収が少ない・・・
等々でお悩みの方もお気軽にご相談・
ご連絡ください。
当社ホームページに掲載していない物件
やポータルサイト・ホームページ・折り
込み広告等に掲載されている物件でも、
仲介手数料が最大0円(無料)でご紹介
可能な物件が多数ございます。気になる
物件がございましたら、お気軽にお問い
合わせください。設備(その他) 網戸標準仕様・シャッター2箇所付・エコジョーズ 取扱会社 - ひまわり土地建物株式会社
- 神奈川県海老名市上今泉2丁目2-30
- TEL:0120-046-260
- 神奈川県知事 (3) 第29184号
- (公社)神奈川県宅地建物取引業協会 (公社)首都圏不動産公正取引協議会加盟
※地図上に表示される物件の位置は付近住所に所在することを表すものであり、実際の物件所在地とは異なる場合がございます。
物件お問い合わせ
- 掲載物件数
-
件
- 公開物件数
-
件
- 本日の更新件数
-
件
- 会員物件数
-
件
同じエリアの新築一戸建
価格と住所の近い物件
- 南区当麻 C号棟
- 4,190万円 4LDK/96.47㎡
- 神奈川県相模原市南区当麻
- 相模線「原当麻」駅 徒歩12分
- 南区麻溝台8丁目 1号棟 1期
- 4,099万円 4LDK/108.44㎡
- 神奈川県相模原市南区麻溝台8丁目
- 小田急小田原線「相武台前」駅
- 南区相南3丁目 2号棟 第20
- 4,080万円 3LDK/80.19㎡
- 神奈川県相模原市南区相南3丁目
- 小田急小田原線「小田急相模原」駅 徒歩15分
- 南区東大沼4丁目 D号棟
- 4,390万円 4LDK/94.39㎡
- 神奈川県相模原市南区東大沼4丁目
- 小田急小田原線「相模大野」駅
- 南区相模台7丁目 1号棟
- 3,995万円 4LDK/99.21㎡
- 神奈川県相模原市南区相模台7丁目
- 小田急小田原線「小田急相模原」駅 徒歩26分





























