平塚市夕陽ヶ丘 B号棟
☆☆☆ 仲介手数料が0円【無料】です ☆☆☆
ご購入時にかかる諸費用(約154万円)を軽減可能です。
(学区)港小学校・太洋中学校
(交通)「平塚」駅徒歩13分
*南東向き・4LDK・完成済み。
*木造3階建。
*駅まで徒歩圏内。
*小中学校徒歩5分圏内。
*ZEH水準。
*都市ガス。
*地震保証。
-

- 苗もんもん保育園・花もんもん保育園(平塚市)
約588m/8分

- 平塚市港こども園(平塚市)
約218m/3分

- 平塚学園松風幼稚園(平塚市)
約975m/13分

- 平塚学園花水幼稚園(平塚市)
約1701m/22分
ローンシミュレーションこの物件を購入した場合の、月々の支払い価格の一例です。借り入れを保証するものではございません。
- 返済期間
-
- 金利
-
- ボーナス時の増額(1回分)
-
- 借入金額:
-
- 頭金:
-

- 毎月の返済額:
(※元利均等方式 金利5.00%まで ※返済年数5~50年まで入力できます)
(※ボーナスは年2回で計算しています。1000万円まで入力できます)
(※物件購入時、その他諸費用が発生する場合がございます)
情報の見方担当者のコメント ひまわり土地建物株式会社

- (学区)港小学校(徒歩4分)
太洋中学校(徒歩5分)
(交通)JR東海道線「平塚」駅徒歩13分
JR東海道線「平塚」駅バス3分停歩3分
(ポイント)
*3階建て。
*省エネ性能ラベル有り。
*エネルギー消費性能:☆3。(4段階中)
*断熱性能:5。(7段階中)
*ZEH水準相当。(省エネ住宅)
*子育てグリーン住宅支援事業の対象要件を満たしています。
*各種保証付き。
*地盤保障。(20年)
*建物保証。(10年)
*地震保証。
*白蟻保証。(施工から5年)
*瑕疵保険加入。(JIO)
*長期保証制度有り。
*温水シャワー外水栓。
*ビルドガレージ1台。(車種による)
*2階LDK。
*全居室収納付き。
*ウォークインクローゼット。
*カウンターキッチン。(食洗器・浄水器付き)
*電動シャッター。
*都市ガス。
*近隣には、「ロピア」「OSC湘南シティ」があります。買い物に便利です。
*フラット35対応物件。
*洪水浸水想定区域。
*津波浸水想定区域。
*車庫面積は、建物面積に含まれます。
*近隣には、「ひらつかビーチセンター」があります。
弊社ホームページの会員登録をしていただきますと公開していない物件もご覧いただけます。
ポイント・特徴
仲介手数料無料 港小学校 平塚駅 徒歩圏内 小学校徒歩5分圏内 中学校徒歩5分圏内 ZEH水準 都市ガス 自身保証 3階建て 完成済み
物件概要
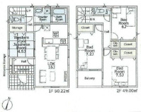
【新築一戸建】 物件番号:98542612 情報更新日:2026年01月12日 次回更新予定日:2026年01月21日所在地 神奈川県平塚市夕陽ケ丘 交通 間取り/詳細 4LDK/
洋室 7.5帖 1室/洋室 5.3帖 1室/洋室 5.2帖 1室/洋室 5.1帖 1室/LDK 19.0帖 1室建物面積(坪数) 116.02㎡(35.09坪) 価格 4,485万円 駐車場/月額料金 有(1台)/0円 (車種による) 土地の敷金/保証金 -/- 借地料/借地期間 -/- 土地権利 所有権 土地面積(坪数) 68.77㎡(20.80坪) 傾斜地部分面積 - 路地状敷地 - 私道負担面積/セットバック -/無 高圧線下面積 - 地目/地勢 宅地/- 接道状況 一方(北東 公道 4.0m)(北西) 建ぺい率/容積率 60%/200% 用途地域 第一種住居 都市計画 市街化区域 種別/構造 新築一戸建/木造 階建 3階建 築年月(築年数) 2025年 6月 (新築) 総区画数/販売区画数 2区画/1区画 向き 南東 現況 完成済み その他の法令上の制限 準防火地域 取引態様/引渡時期 仲介/相談 建築確認番号 - 物件番号 98542612 取引条件の有効期限 2026年01月21日 設備条件 - 仲介手数料無料
- バルコニー
- 都市ガス
- 公営水道
- 公共下水
- 24時間換気システム
- 電気有
- ビルトガレージ
- ガスコンロ
- コンロ2口以上
- 食器洗い乾燥機
- 対面式キッチン
- コンロ3口
- 追焚機能浴室
- 浴室乾燥機
- 温水洗浄便座
- トイレ2ヶ所
- 床下収納
- ウォークインクロゼット
- 複層ガラス
- 住戸内覧可能
備考 住宅ローンのご相談も精通したスタッフが無料でアドバイスさせて頂きます。
〇車のローンが残っている・・・。
〇シングルマザーだからローンは厳しいかな・・・。
〇産休で一時的に年収が下がっている・・・。
〇ローンを組みたいけど転職したばかりで・・・。
〇頭金がない・・・。
〇年収が少ない・・・。
金融機関のご指定等含めご相談ください。
取扱会社 - ひまわり土地建物株式会社
- 神奈川県海老名市上今泉2丁目2-30
- TEL:0120-046-260
- 神奈川県知事 (3) 第29184号
- (公社)神奈川県宅地建物取引業協会 (公社)首都圏不動産公正取引協議会加盟
※地図上に表示される物件の位置は付近住所に所在することを表すものであり、実際の物件所在地とは異なる場合がございます。
物件お問い合わせ
- 掲載物件数
-
件
- 公開物件数
-
件
- 本日の更新件数
-
件
- 会員物件数
-
件
価格と住所の近い物件
- 平塚市立野町 1号棟 第4
- 4,480万円 4LDK/99.22㎡
- 神奈川県平塚市立野町
- 東海道本線「平塚」駅
- 平塚市御殿4丁目 1号棟 2期
- 4,399万円 4LDK/107.79㎡
- 神奈川県平塚市御殿4丁目
- 東海道本線「平塚」駅
- 平塚市袖ケ浜 1号棟 3期
- 4,399万円 4LDK/97.71㎡
- 神奈川県平塚市袖ケ浜
- 東海道本線「平塚」駅 徒歩17分
- 平塚市立野町 2号棟 第4
- 4,280万円 4LDK/95.58㎡
- 神奈川県平塚市立野町
- 東海道本線「平塚」駅
- 平塚市諏訪町 3号棟
- 4,280万円 4LDK/105.99㎡
- 神奈川県平塚市諏訪町
- 東海道本線「平塚」駅

































