伊勢原市桜台5丁目 1号棟 4期
【 仲介手数料0円(無料) 】
□フラット35S(金利Aタイプ)利用可 □ZEH水準
〇学区:桜台小学校(徒歩10分)・伊勢原中学校(徒歩7分)
☆敷地面積47.5坪、三方道路、駐車並列2台(車種によります)
☆網戸標準仕様 ☆シャッター2箇所付
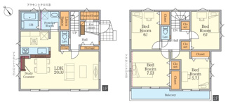
☆LDK20帖、メイン洋室7.5帖、SIC、リネン庫
-

- クリエイトエス・ディー 伊勢原桜台店
約1042m/14分

- 大原保育園(伊勢原市)
約1223m/16分

- 伊勢原市立中央保育園(伊勢原市)
約1531m/20分

- リスブラン保育園(伊勢原市)
約1457m/19分
ローンシミュレーションこの物件を購入した場合の、月々の支払い価格の一例です。借り入れを保証するものではございません。
- 返済期間
-
- 金利
-
- ボーナス時の増額(1回分)
-
- 借入金額:
-
- 頭金:
-

- 毎月の返済額:
(※元利均等方式 金利5.00%まで ※返済年数5~50年まで入力できます)
(※ボーナスは年2回で計算しています。1000万円まで入力できます)
(※物件購入時、その他諸費用が発生する場合がございます)
情報の見方担当者のコメント ひまわり土地建物株式会社

- ☆ 仲介手数料0円(無料)対象物件 ☆
本物件のご購入時にかかる通常仲介手数料
【本体価格×3.3%+6.6万円(約168万円)】が
当社なら0円(無料)となり、お得にご購入できます。
●小学校区:桜台(徒歩10分)
●中学校区:伊勢原(徒歩7分)
(事前に役所等でご確認をお願いします)
□フラット35S(金利Aタイプ)利用可
□ZEH水準(第三者評価BELS)
◇三方道路、敷地面積47.5坪、駐車並列2台(車種によります)
◇二部屋から行き来できるバルコニー
◇網戸標準仕様、シャッター2箇所付
◇エスポット伊勢原店徒歩9分
◇4LDK:LDK20帖、メイン洋室7.5帖、SIC、リネン庫、全居室収納、全室2面採光
*南西側及び北西側道路は法外道路
【法令上の制限・その他】
・景観法/宅地造成及び特定盛土等規制法/
都市再生特別措置法
・法22条区域/建築物の高さの制限10m
≪ 自己資金0円でのご購入、諸費用部分やオプション工事
費用等を含めた金額を住宅ローンに組み込んでのお借り入れ
もご相談可能です ≫
当社ホームページに掲載していない物件やポータルサイト・
他社様ホームページ・折り込み広告等に掲載されている物件
でも、仲介手数料が最大0円(無料)で、ご紹介可能な物件
が多数ございます。気になる物件がございましたら、
お気軽に 0120-046-260 までお電話頂くか、
下記、お問い合わせよりお問い合わせください。
販売中につき次回更新時までに成約になる場合があります。
予めご了承くださいますようお願い申し上げます。
ポイント・特徴
仲介手数料0円(無料) 伊勢原市桜台 新築 桜台小学校 LDK20帖以上 スーパー徒歩10分圏内 角地 駐車2台 伊勢原駅
物件概要
【新築一戸建】 物件番号:97553187 情報更新日:2025年12月15日 次回更新予定日:2025年12月29日所在地 神奈川県伊勢原市桜台5丁目 交通 間取り/詳細 4LDK/
LDK20帖・メイン洋室7.5帖・SIC・リネン庫建物面積(坪数) 108.47㎡(32.81坪) 価格 4,899万円 駐車場/月額料金 有(2台)/0円 (並列駐車・車種によります) 土地の敷金/保証金 -/- 借地料/借地期間 -/- 土地権利 所有権 土地面積(坪数) 157.15㎡(47.53坪) 傾斜地部分面積 - 路地状敷地 - 私道負担面積/セットバック -/- 高圧線下面積 - 地目/地勢 宅地/- 接道状況 三方(南東 公道 4.1m)(南西)(北西) 建ぺい率/容積率 50%/100% 用途地域 第一種低層住居専用 都市計画 市街化区域 種別/構造 新築一戸建/木造 階建 2階建 築年月(築年数) 2025年 12月 (予定) 総区画数/販売区画数 -/- 向き - 現況 未完成 その他の法令上の制限 景観法/宅地造成及び特定盛土等規制法/都市再生特別措置法 法22条区域/建築物の高さの制限10m ※南西・北西側道路は法外道路 取引態様/引渡時期 仲介/相談 建築確認番号 第25UDI1W建04214号 物件番号 97553187 取引条件の有効期限 2025年12月29日 設備条件 - 仲介手数料無料
- フローリング
- バルコニー
- プロパンガス
- 公営水道
- 公共下水
- 24時間換気システム
- 電気有
- 駐車2台可
- ガスコンロ
- 食器洗い乾燥機
- システムキッチン
- 対面式キッチン
- 追焚機能浴室
- 浴室乾燥機
- 温水洗浄便座
- 洗髪洗面化粧台
- トイレ2ヶ所
- 浴室1坪以上
- 床下収納
- TVモニタ付インターホン
- 複層ガラス
- ディンプルキー
備考 ◇ ご購入:仲介手数料が最大無料 ◇
◇ ご売却:仲介手数料が最大半額 ◇
(秘密厳守。ご相談・査定は無料です)
住宅ローンのご相談も住宅ローンに精通
したスタッフが無料でアドバイスさせて
頂きます。
〇車のローンが残っている・・・
〇シングルマザーだからローンは
厳しいかな・・・
〇産休で一時的に年収が下がっている・・・
〇ローンを組みたいけど転職
したばかりで・・・
〇頭金が少ない・・・
〇年収が少ない・・・
等々でお悩みの方もお気軽にご相談・
ご連絡ください。
当社ホームページに掲載していない物件
やポータルサイト・ホームページ・折り
込み広告等に掲載されている物件でも、
仲介手数料が最大0円(無料)でご紹介
可能な物件が多数ございます。気になる
物件がございましたら、お気軽にお問い
合わせください。設備(その他) 網戸標準仕様・シャッター2箇所付・エコジョーズ 取扱会社 - ひまわり土地建物株式会社
- 神奈川県海老名市上今泉2丁目2-30
- TEL:0120-046-260
- 神奈川県知事 (3) 第29184号
- (公社)神奈川県宅地建物取引業協会 (公社)首都圏不動産公正取引協議会加盟
※地図上に表示される物件の位置は付近住所に所在することを表すものであり、実際の物件所在地とは異なる場合がございます。
物件お問い合わせ
- 掲載物件数
-
件
- 公開物件数
-
件
- 本日の更新件数
-
件
- 会員物件数
-
件
同じエリアの新築一戸建
価格と住所の近い物件
- 伊勢原市高森1丁目 1号棟 第2
- 4,280万円 4LDK/104.33㎡
- 神奈川県伊勢原市高森1丁目
- 小田急小田原線「愛甲石田」駅
- 伊勢原市高森6丁目 4号棟
- 4,280万円 4LDK/98.32㎡
- 神奈川県伊勢原市高森6丁目
- 小田急小田原線「愛甲石田」駅 徒歩17分
- 伊勢原市東大竹 3号棟 1期
- 4,099万円 4LDK/112.20㎡
- 神奈川県伊勢原市東大竹
- 小田急小田原線「伊勢原」駅 徒歩15分
- 伊勢原市高森6丁目 3号棟
- 4,080万円 4LDK/98.95㎡
- 神奈川県伊勢原市高森6丁目
- 小田急小田原線「愛甲石田」駅 徒歩17分
- 伊勢原市高森2丁目 3号棟 第3
- 4,080万円 4LDK/102.67㎡
- 神奈川県伊勢原市高森2丁目
- 小田急小田原線「愛甲石田」駅




























