南足柄市中沼 1号棟 1期
☆☆☆ 仲介手数料が0円【無料】です ☆☆☆
ご購入時にかかる諸費用(約88万円)を軽減可能です。
(学区)南足柄小学校・南足柄中学校
(交通)「和田河原」駅徒歩12分
南西向き・3LDK・完成済み。
木造平屋建て。
駅まで徒歩圏内。
長期優良住宅。
耐震。
ZEH水準。(省エネ住宅)
-
ローンシミュレーションこの物件を購入した場合の、月々の支払い価格の一例です。借り入れを保証するものではございません。
- 返済期間
-
- 金利
-
- ボーナス時の増額(1回分)
-
- 借入金額:
-
- 頭金:
-

- 毎月の返済額:
(※元利均等方式 金利5.00%まで ※返済年数5~50年まで入力できます)
(※ボーナスは年2回で計算しています。1000万円まで入力できます)
(※物件購入時、その他諸費用が発生する場合がございます)
情報の見方担当者のコメント ひまわり土地建物株式会社

- (学区)南足柄小学校(徒歩28分)
南足柄中学校(徒歩28分)
(交通)大雄山線「和田河原」駅徒歩12分
(ポイント)
*駅まで徒歩圏内。
*平屋建て。
*長期優良住宅。
*住宅市恵能評価書対応。(設計・建設)
*耐震等級:3取得。
*省エネ性能ラベル有り。
*エネルギー消費性能:☆4。(4段階中)
*断熱性能:6:(7段階中)
*目安光熱費:約23万円/年間
*ZEH水準相当。(省エネ住宅)
*全居室収納付き。
*ウォークインクローゼット。
*カースペース2台。(車種による)
*LDK:20帖。
*主寝室:7.5帖。
*全居室2面採光。
*システムキッチン。(浄水器付き)
*浴室1坪以上。
*宅配ボックス。
*地役権設定有り。(0.28㎡)
*洪水浸水想定区域。
弊社ホームページの会員登録をしていただきますと公開していない物件もご覧いただけます。
ポイント・特徴
物件概要
【新築一戸建】 物件番号:98701857 情報更新日:2025年12月15日 次回更新予定日:2025年12月24日所在地 神奈川県南足柄市中沼 交通 - 伊豆箱根鉄道大雄山線「和田河原」駅 徒歩12分
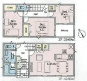
間取り/詳細 3LDK/
洋室 7.5帖 1室/洋室 6.7帖 1室/洋室 5.2帖 1室/LDK 20.0帖 1室建物面積(坪数) 84.46㎡(25.54坪) 価格 2,480万円 駐車場/月額料金 有(2台)/0円 (車種による) 土地の敷金/保証金 -/- 借地料/借地期間 -/- 土地権利 所有権 土地面積(坪数) 164.26㎡(49.68坪) 傾斜地部分面積 - 路地状敷地 - 私道負担面積/セットバック -/無 高圧線下面積 - 地目/地勢 宅地/- 接道状況 一方(西 公道 6.3m 間口 13.5m) 建ぺい率/容積率 60%/200% 用途地域 準工業 都市計画 市街化区域 種別/構造 新築一戸建/木造 階建 2階建 築年月(築年数) 2025年 9月 (新築) 総区画数/販売区画数 2区画/1区画 向き 南西 現況 完成済み その他の法令上の制限 一部協定通路/法22条区域 取引態様/引渡時期 仲介/即時 建築確認番号 - 物件番号 98701857 取引条件の有効期限 2025年12月24日 設備条件 - 建設住宅性能評価書付
- 仲介手数料無料
- フローリング
- プロパンガス
- 公営水道
- 公共下水
- 24時間換気システム
- 駐車2台可
- 耐震構造
- システムキッチン
- 対面式キッチン
- 浴室乾燥機
- 温水洗浄便座
- 洗面台
- 浴室1坪以上
- 床下収納
- ウォークインクロゼット
- TVモニタ付インターホン
- 宅配ボックス
- 複層ガラス
- ディンプルキー
- 住戸内覧可能
備考 住宅ローンのご相談も精通したスタッフが無料でアドバイスさせて頂きます。
〇車のローンが残っている・・・。
〇シングルマザーだからローンは厳しいかな・・・。
〇産休で一時的に年収が下がっている・・・。
〇ローンを組みたいけど転職したばかりで・・・。
〇頭金がない・・・。
〇年収が少ない・・・。
金融機関のご指定等含めご相談ください。
取扱会社 - ひまわり土地建物株式会社
- 神奈川県海老名市上今泉2丁目2-30
- TEL:0120-046-260
- 神奈川県知事 (3) 第29184号
- (公社)神奈川県宅地建物取引業協会 (公社)首都圏不動産公正取引協議会加盟
※地図上に表示される物件の位置は付近住所に所在することを表すものであり、実際の物件所在地とは異なる場合がございます。
物件お問い合わせ
- 掲載物件数
-
件
- 公開物件数
-
件
- 本日の更新件数
-
件
- 会員物件数
-
件
同じエリアの新築一戸建
価格と住所の近い物件
- 南足柄市関本 6号棟 第8
- 2,480万円 3LDK/82.62㎡
- 神奈川県南足柄市関本
- 伊豆箱根鉄道大雄山線「富士フイルム前」駅 徒歩3分
- 南足柄市塚原 3号棟 第35
- 2,480万円 4LDK/102.06㎡
- 神奈川県南足柄市塚原
- 伊豆箱根鉄道大雄山線「塚原」駅 徒歩9分
- 南足柄市中沼 8号棟 第12
- 2,380万円 3LDK/82.62㎡
- 神奈川県南足柄市中沼
- 伊豆箱根鉄道大雄山線「和田河原」駅 徒歩11分
- 南足柄市塚原 2号棟 第35
- 2,580万円 4LDK/101.25㎡
- 神奈川県南足柄市塚原
- 伊豆箱根鉄道大雄山線「塚原」駅 徒歩9分
- 南足柄市中沼 7号棟 第12
- 2,680万円 4LDK/95.57㎡
- 神奈川県南足柄市中沼
- 伊豆箱根鉄道大雄山線「和田河原」駅 徒歩11分
































