綾瀬市寺尾北3丁目 1号棟 第14
【 仲介手数料0円(無料) 】
□耐震+制震・耐震等級3 □住宅性能評価書取得
□フラット35S(金利Aタイプ)利用可 □ZEH水準
〇学区:天台小学校・綾北中学校
☆駐車2台(車種によります)
☆防犯カメラ、引き違い窓シャッター付
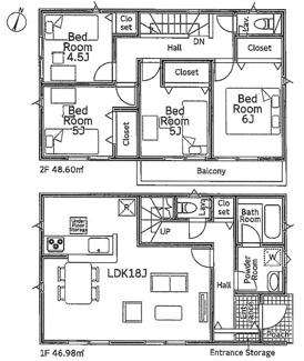
☆二部屋から行き来できる南向きバルコニー
☆ドラッグストア徒歩6分 ☆LDK18帖
-

- クリエイトエス・ディー綾瀬さくら並木店
約427m/6分

- 大上保育園(綾瀬市)
約852m/11分

- 綾瀬ゆめっこ保育園(綾瀬市)
約1237m/16分

- さくらチャイルドセンター(綾瀬市)
約1640m/21分
ローンシミュレーションこの物件を購入した場合の、月々の支払い価格の一例です。借り入れを保証するものではございません。
- 返済期間
-
- 金利
-
- ボーナス時の増額(1回分)
-
- 借入金額:
-
- 頭金:
-

- 毎月の返済額:
(※元利均等方式 金利5.00%まで ※返済年数5~50年まで入力できます)
(※ボーナスは年2回で計算しています。1000万円まで入力できます)
(※物件購入時、その他諸費用が発生する場合がございます)
情報の見方担当者のコメント ひまわり土地建物株式会社

- ☆ 仲介手数料0円(無料)対象物件 ☆
本物件のご購入時にかかる通常仲介手数料
【本体価格×3.3%+6.6万円(約137万円)】が
当社なら0円(無料)となり、お得にご購入できます。
●小学校区:天台
●中学校区:綾北
(事前に役所等でご確認をお願いします)
□耐震+制震・耐震等級3
□住宅性能評価書取得
□フラット35S(金利Aタイプ)利用可
□ZEH水準
◇駐車2台(車種によります)
◇二部屋から行き来できる南向きバルコニー
◇防犯カメラ(利用時Wifi接続・録画時SDカード必要)
◇引き違い窓シャッター付、人感センサー付玄関灯
◇4LDK:LDK18帖、全居室収納
*敷地内擁壁有
*北側隣地境界は共有CB
【法令上の制限・その他】
・景観法/航空法/宅地造成及び特定盛土等規制法/
特定都市河川浸水被害対策法
・準防火地域
≪ 自己資金0円でのご購入、諸費用部分やオプション工事
費用等を含めた金額を住宅ローンに組み込んでのお借り入れ
もご相談可能です ≫
当社ホームページに掲載していない物件やポータルサイト・
他社様ホームページ・折り込み広告等に掲載されている物件
でも、仲介手数料が最大0円(無料)で、ご紹介可能な物件
が多数ございます。気になる物件がございましたら、
お気軽に 0120-046-260 までお電話頂くか、
下記、お問い合わせよりお問い合わせください。
販売中につき次回更新時までに成約になる場合があります。
予めご了承くださいますようお願い申し上げます。
ポイント・特徴
仲介手数料0円(無料) 綾瀬市寺尾北 新築一戸建て 天台小学校 LDK18帖以上 駐車2台 かしわ台駅 耐震+制震 耐震等級3
物件概要
【新築一戸建】 物件番号:98701101 情報更新日:2025年11月10日 次回更新予定日:2025年11月24日所在地 神奈川県綾瀬市寺尾北3丁目 交通 間取り/詳細 4LDK/
LDK18帖建物面積(坪数) 95.58㎡(28.91坪) 価格 3,980万円 駐車場/月額料金 有(2台)/0円 (縦列駐車・車種によります) 土地の敷金/保証金 -/- 借地料/借地期間 -/- 土地権利 所有権 土地面積(坪数) 97.71㎡(29.55坪) 傾斜地部分面積 - 路地状敷地 - 私道負担面積/セットバック -/- 高圧線下面積 - 地目/地勢 宅地/- 接道状況 一方(北東 公道 4.0m) 建ぺい率/容積率 60%/200% 用途地域 第一種中高層住居専用 都市計画 市街化区域 種別/構造 新築一戸建/木造 階建 2階建 築年月(築年数) 2026年 1月 (予定) 総区画数/販売区画数 -/- 向き - 現況 未完成 その他の法令上の制限 景観法/航空法/宅地造成及び特定盛土等規制法/特定都市河川浸水被害対策法 準防火地域 ※敷地内擁壁有 ※北側隣地境界は共有CB 取引態様/引渡時期 仲介/相談 建築確認番号 第KBI-SGM25-10-2760号 物件番号 98701101 取引条件の有効期限 2025年11月24日 設備条件 - 建設住宅性能評価書付
- 仲介手数料無料
- フローリング
- バルコニー
- プロパンガス
- 公営水道
- 公共下水
- 24時間換気システム
- 電気有
- 駐車2台可
- 耐震構造
- ガスコンロ
- システムキッチン
- 対面式キッチン
- 追焚機能浴室
- 浴室乾燥機
- 温水洗浄便座
- 洗髪洗面化粧台
- トイレ2ヶ所
- 浴室1坪以上
- 床下収納
- TVモニタ付インターホン
- 複層ガラス
- 防犯カメラ
備考 ◇ ご購入:仲介手数料が最大無料 ◇
◇ ご売却:仲介手数料が最大半額 ◇
(秘密厳守。ご相談・査定は無料です)
住宅ローンのご相談も住宅ローンに精通
したスタッフが無料でアドバイスさせて
頂きます。
〇車のローンが残っている・・・
〇シングルマザーだからローンは
厳しいかな・・・
〇産休で一時的に年収が下がっている・・・
〇ローンを組みたいけど転職
したばかりで・・・
〇頭金が少ない・・・
〇年収が少ない・・・
等々でお悩みの方もお気軽にご相談・
ご連絡ください。
当社ホームページに掲載していない物件
やポータルサイト・ホームページ・折り
込み広告等に掲載されている物件でも、
仲介手数料が最大0円(無料)でご紹介
可能な物件が多数ございます。気になる
物件がございましたら、お気軽にお問い
合わせください。設備(その他) 防犯カメラ(利用時Wifi接続・録画時SDカード必要)・引き違い窓シャッター付・ピッキング対策付玄関ドア、Wロック(カードキー又はタグキー) 取扱会社 - ひまわり土地建物株式会社
- 神奈川県海老名市上今泉2丁目2-30
- TEL:0120-046-260
- 神奈川県知事 (3) 第29184号
- (公社)神奈川県宅地建物取引業協会 (公社)首都圏不動産公正取引協議会加盟
※地図上に表示される物件の位置は付近住所に所在することを表すものであり、実際の物件所在地とは異なる場合がございます。
物件お問い合わせ
- 掲載物件数
-
件
- 公開物件数
-
件
- 本日の更新件数
-
件
- 会員物件数
-
件
価格と住所の近い物件
- 綾瀬市寺尾本町1丁目 10号棟 2期
- 3,980万円 4LDK/95.22㎡
- 神奈川県綾瀬市寺尾本町1丁目
- 相鉄本線「かしわ台」駅 徒歩23分
- 綾瀬市寺尾本町1丁目 2号棟 2期
- 3,980万円 4LDK/101.64㎡
- 神奈川県綾瀬市寺尾本町1丁目
- 相鉄本線「かしわ台」駅 徒歩23分
- 綾瀬市深谷中3丁目 3号棟 1期
- 3,999万円 4LDK/104.61㎡
- 神奈川県綾瀬市深谷中3丁目
- 小田急江ノ島線「長後」駅
- 綾瀬市寺尾本町1丁目 3号棟 2期
- 4,080万円 4LDK/101.43㎡
- 神奈川県綾瀬市寺尾本町1丁目
- 相鉄本線「かしわ台」駅 徒歩23分
- 綾瀬市綾西4丁目 中古戸建
- 3,880万円 5LDK/118.00㎡
- 神奈川県綾瀬市綾西4丁目
- 小田急小田原線「海老名」駅































