寒川町岡田7丁目 1号棟 2期
【 仲介手数料0円(無料) 】
□制震ダンパー設置 □ZEH水準
〇学区:小谷小学校・寒川東中学校
☆網戸標準仕様 ☆都市ガス、エコジョーズ
☆Wロックタグキー ☆シャッター2箇所付
☆二部屋から行き来できる南向きバルコニー
☆スーパー(アメリア三和寒川店)徒歩6分、ドラッグストア徒歩3分
-
ローンシミュレーションこの物件を購入した場合の、月々の支払い価格の一例です。借り入れを保証するものではございません。
- 返済期間
-
- 金利
-
- ボーナス時の増額(1回分)
-
- 借入金額:
-
- 頭金:
-

- 毎月の返済額:
(※元利均等方式 金利5.00%まで ※返済年数5~50年まで入力できます)
(※ボーナスは年2回で計算しています。1000万円まで入力できます)
(※物件購入時、その他諸費用が発生する場合がございます)
情報の見方担当者のコメント ひまわり土地建物株式会社

- ☆ 仲介手数料0円(無料)対象物件 ☆
本物件のご購入時にかかる通常仲介手数料
【本体価格×3.3%+6.6万円(約106万円)】が
当社なら0円(無料)となり、お得にご購入できます。
□制震ダンパー設置 □ZEH水準・省エネ基準適合住宅
□学区:小谷小学校・寒川東中学校
〇都市ガス、エコジョーズ。
〇スーパー(アメリア三和寒川店)徒歩6分、ドラッグストア徒歩3分。
〇二部屋から行き来可能な南向きバルコニー。
〇屋根洋瓦葺き。
〇網戸標準仕様。
〇シャッター2箇所付。
〇Wロックタグキー(スマートコントロールキー)。
〇食洗機付、浄水器一体シャワー水栓。
〇浴室乾燥機+窓、浴室TV。
〇北側道路、駐車1台(車種によります)。
〇洗面所にリネン棚あり、洗濯機置場ガス栓(ガス乾燥機用)あり。
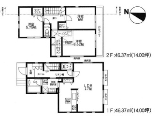
〇LDK17帖、メイン洋室8.6帖+WIC、パントリー、屋根裏収納。
*東側隣地所有のCBが越境しております。(将来是正の合意書あり)
≪ 自己資金0円でのご購入、諸費用部分やオプション工事
費用等を含めた金額を住宅ローンに組み込んでのお借り入れ
もご相談可能です ≫
当社ホームページに掲載していない物件やポータルサイト・
他社様ホームページ・折り込み広告等に掲載されている物件
でも、仲介手数料が最大0円(無料)で、ご紹介可能な物件
が多数ございます。気になる物件がございましたら、
お気軽に 0120-046-260 までお電話頂くか、
下記、お問い合わせよりお問い合わせください。
販売中につき次回更新時までに成約になる場合があります。
予めご了承くださいますようお願い申し上げます。
ポイント・特徴
物件概要
【新築一戸建】 物件番号:89363153 情報更新日:2025年11月10日 次回更新予定日:2025年11月24日所在地 神奈川県高座郡寒川町岡田7丁目 交通 間取り/詳細 3LDK/
LDK17帖・メイン洋室8.6帖+WIC・屋根裏収納建物面積(坪数) 92.74㎡(28.05坪) 価格 3,030万円 駐車場/月額料金 有(1台)/0円 (車種によります) 土地の敷金/保証金 -/- 借地料/借地期間 -/- 土地権利 所有権 土地面積(坪数) 92.83㎡(28.08坪) 傾斜地部分面積 - 路地状敷地 - 私道負担面積/セットバック -/無 高圧線下面積 - 地目/地勢 宅地/- 接道状況 一方(北 公道 4.6m) 建ぺい率/容積率 50%/100% 用途地域 第一種低層住居専用 都市計画 市街化区域 種別/構造 新築一戸建/木造 階建 2階建 築年月(築年数) 2025年 3月 (新築) 総区画数/販売区画数 -/- 向き - 現況 完成済み その他の法令上の制限 景観法/宅地造成及び特定盛土等規制法 法22条区域/建築物の高さの限度10m ※東側隣地所有のCBが越境(将来是正の合意書あり) 取引態様/引渡時期 仲介/相談 建築確認番号 第24UDI1K建00804号 物件番号 89363153 取引条件の有効期限 2025年11月24日 設備条件 - 仲介手数料無料
- フローリング
- バルコニー
- 都市ガス
- 公営水道
- 公共下水
- 24時間換気システム
- 電気有
- ガスコンロ
- 食器洗い乾燥機
- システムキッチン
- 対面式キッチン
- 追焚機能浴室
- 浴室乾燥機
- 温水洗浄便座
- 洗髪洗面化粧台
- トイレ2ヶ所
- 浴室1坪以上
- 床下収納
- ウォークインクロゼット
- 屋根裏収納
- 食品庫
- TVモニタ付インターホン
- 複層ガラス
- ディンプルキー
- 住戸内覧可能
備考 ◇ ご購入:仲介手数料が最大無料 ◇
◇ ご売却:仲介手数料が最大半額 ◇
(秘密厳守。ご相談・査定は無料です)
住宅ローンのご相談も住宅ローンに精通
したスタッフが無料でアドバイスさせて
頂きます。
〇車のローンが残っている・・・
〇シングルマザーだからローンは
厳しいかな・・・
〇産休で一時的に年収が下がっている・・・
〇ローンを組みたいけど転職
したばかりで・・・
〇頭金が少ない・・・
〇年収が少ない・・・
等々でお悩みの方もお気軽にご相談・
ご連絡ください。
弊社ホームページに掲載していない物件
やポータルサイト・ホームページ・折り
込み広告等に掲載されている物件でも、
仲介手数料が最大0円(無料)でご紹介
可能な物件が多数ございます。気になる
物件がございましたら、お気軽にお問い
合わせください。設備(その他) 網戸標準仕様・シャッター2箇所付・Wロックタグキー(スマートコントロールキー)・浴室TV・屋根洋瓦葺き・エコジョーズ 取扱会社 - ひまわり土地建物株式会社
- 神奈川県海老名市上今泉2丁目2-30
- TEL:0120-046-260
- 神奈川県知事 (3) 第29184号
- (公社)神奈川県宅地建物取引業協会 (公社)首都圏不動産公正取引協議会加盟
※地図上に表示される物件の位置は付近住所に所在することを表すものであり、実際の物件所在地とは異なる場合がございます。
物件お問い合わせ
- 掲載物件数
-
件
- 公開物件数
-
件
- 本日の更新件数
-
件
- 会員物件数
-
件
価格と住所の近い物件
- 寒川町岡田8丁目 1号棟 第31
- 2,980万円 3LDK/73.70㎡
- 神奈川県高座郡寒川町岡田8丁目
- 相模線「寒川」駅 徒歩21分
- 寒川町倉見 1号棟 第57
- 2,880万円 4LDK/94.76㎡
- 神奈川県高座郡寒川町倉見
- 相模線「倉見」駅 徒歩22分
- 寒川町岡田8丁目 2号棟 第31
- 3,180万円 2LDK/72.90㎡
- 神奈川県高座郡寒川町岡田8丁目
- 相模線「寒川」駅 徒歩21分
- 寒川町岡田7丁目 2号棟 第32
- 3,180万円 3LDK/81.81㎡
- 神奈川県高座郡寒川町岡田7丁目
- 相模線「寒川」駅 徒歩19分
- 寒川町中瀬 1号棟 5期
- 3,220万円 3LDK/82.91㎡
- 神奈川県高座郡寒川町中瀬
- 相模線「寒川」駅 徒歩10分
































